有限会社マツモト
低コストと顧客満足度を両立させる、新しい建築方式。住まいのコンサルタント。
TOP 会社概要 サービス概要 スタッフ紹介 アクセス
サービス概要
建築  リフォーム  競売物件取得再生  マンション経営  収入住宅
CD方式の概要 / 直接契約業者の紹介 / [事例] 完成マンション / [事例] 外断熱住宅 / スケルトン・インフィル(SI)工法
CD方式での実績あるSI住宅 住まい手のライフサイクルに合わせてカタチを変える、しなやかな家。
加盟店
募集中
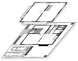
地震に強いRC壁式工法スケルトン・インフィル住宅(間仕切り自由) 2階建て
いったん建ててしまった家には住まい手が合わせて生きていく他なく、その結果、生活満足度が低下したり、建て替え、引っ越しを余儀なくされることも少なくない現実。
「生涯住まう家」「次世代に受け継がれる家」の提供を追求する当社は、住まい手のライフサイクル(変化していく家族の人数や年齢構成)に応じて自由に間取りを変えていける家を、お客様に提案したいと思います。

それを実現するのがスケルトン・インフィル(SI)工法。
この工法は、家の構造を設計段階から「スケルトン(躯体)」と「インフィル(内装)」の2つに分けて発想することで、家構えは何十年も持つ頑丈性、屋内には住まい手の変化に合わせられる柔軟性を同時に実現するためのものです。

茨城県初となるスケルトン・インフィル(SI)住宅を、弊社では地震に強い鉄筋コンクリート壁式工法で建築。今話題の鉄筋コンクリート外断熱工法で戸建て住宅を低価格で実現します。

年代ごとの間取り
30代ご夫婦プラン 将来の家族計画に備えて、2階は余裕のある間取りで。
趣味のスペースにして、家を持った満足感を存分に満たすのも良いでしょう。
40〜50代ご夫婦+お子様2人プラン お子様が生まれ、2階は子どもたちの部屋へとリフォーム。
家族が増えていくごとに部屋を仕切り直していくのも、子育て世代の喜びの1つとなります。
60代ご夫婦+ゆとりのプラン 育てあげたお子様が巣立ったあとは、熟年を迎え時間的にも経済的にも余裕が出てきて趣味の範囲も広くなったご夫婦のために、子ども部屋は趣味の部屋に。
1部屋残しておけば、お子様方がお孫さんを連れてのたまの里帰りへの備えも万全です。


S I
話題の外断熱工法
地震に強い鉄筋コンクリート壁
間仕切り自由で中古市場で強い
低価格戸建て住宅
スケルトン・インフィル(SI)工法で建てられた家は「頑丈な躯体」、「リフォームしやすい内部構造」という特長を持ちます。
このことは、家の再販価値に直結します。
中古住宅市場でマイホームを求める消費者にとって、スケルトン・インフィル(SI)住宅は耐久性が高いため少々築年数が経っていても安心。その上ニーズにあわせて容易にリフォームできる点が、高い価値を認められるのです。


内装設備の選択肢も広く、設置後のリフォームやリプレイスも容易。
間仕切りや壁を用いず、対面式キッチンやタンスなどの生活機能そのもので
空間を仕切ってみるなど、可能性は無限です。
壁のない一続きの空間がもたらす解放感と、家族のつながり感を失わないままに、
それぞれ自分の時間を過ごせる絶妙な距離感と安心感をプロデュースできます。
洗面台
キッチン バス
 TEL 029-864-2299  FAX 029-864-2740 
TOP UP
©Matsumoto,co.,ltd. All Rights Reserved.